空き家情報

Vacant house

賃貸

海のすぐ近く、ハウスクリーニング有の賃貸物件

登録番号空き家 No.389
価格 賃貸価格 35,000 円/月 敷金0ヶ月、礼金1ヶ月
地区/住所 【大町地区】 魚津市本町一丁目4番19号  MAP
空き家となった時期2024年(令和6年)10月

物件詳細

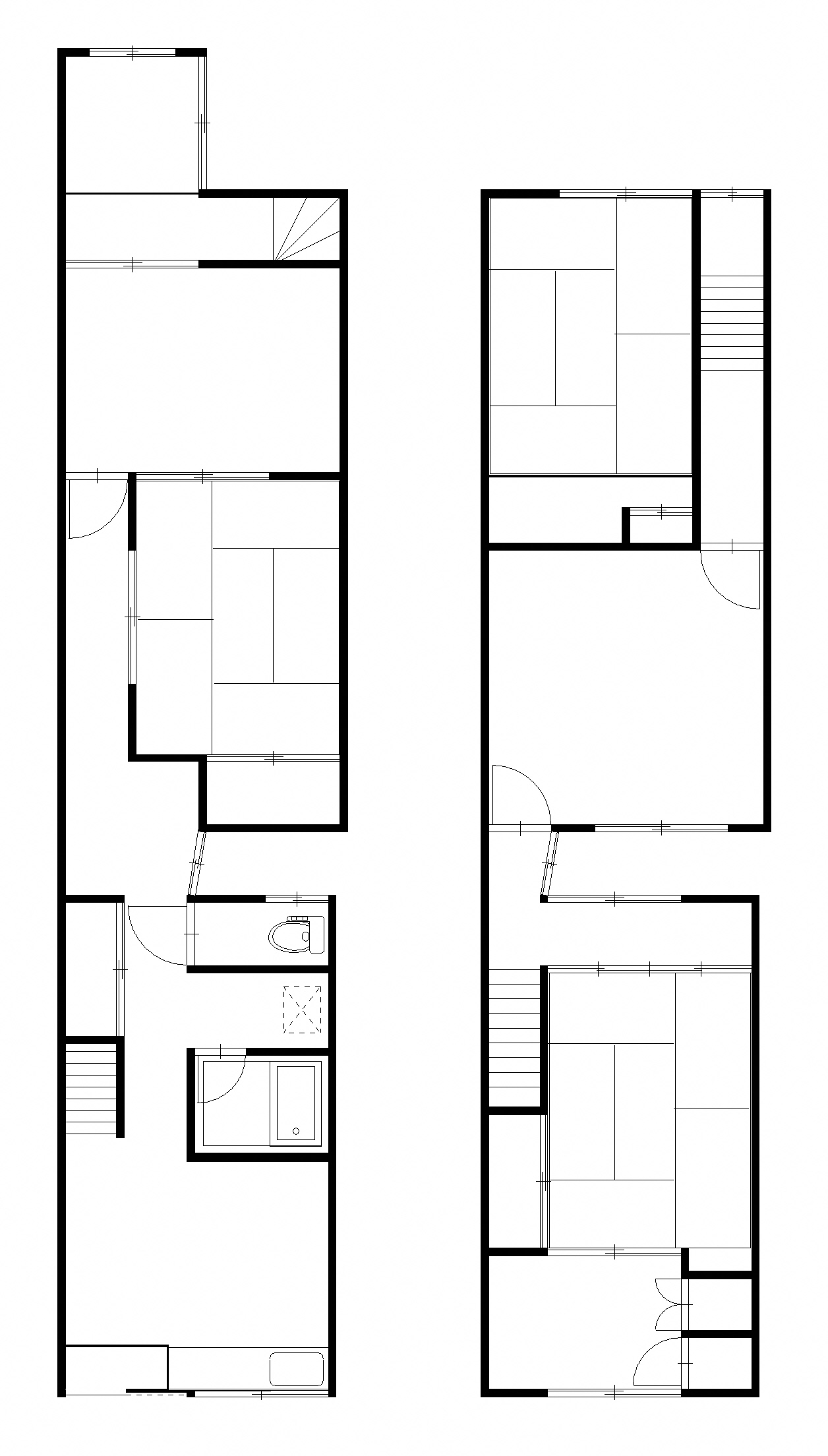
空家の状況・間取り

用途住宅
構造木造
階建て2階建て
建築時期不明
建築面積
延べ床面積110.64㎡
敷地面積
間取り(部屋数)1階2部屋、2階3部屋

設備

水道水道
ガス単独
風呂
トイレ水洗
下水道(接続)接続済み
駐車場なし
修繕箇所お貸しする前に不具合を直し、専門業者によるハウスクリーニングを実施します。

土地関係

地目宅地
権利関係所有

都市計画

用途区域第一種住居地域
建ぺい率60%
容積率200%
接面道路市道(幅員4m未満)

周辺状況

最寄駅電鉄魚津駅 500m
市役所魚津市役所 2.3km
総合病院富山ろうさい病院 3.3km
インターチェンジ魚津IC 3.5km
スーパー/コンビニ大阪屋ショップ魚津本江店 1.3km
ファミリーマート魚津新角川店 500m
小学校よつば小学校 1.4km
中学校西部中学校 650m
最寄バス停NTT魚津前(上野方ルート)220m
特記事項
  • ユニットバス、洋式水洗トイレ
  • 駐車場はありません。近隣に月極駐車場があります。
  • 海岸まで160m、海抜4m
ダウンロード資料

所在地地図